Bytom, Rozbark

Bytom
Lokale Do wynajęcia

Bytom

2 900 PLN
Cena
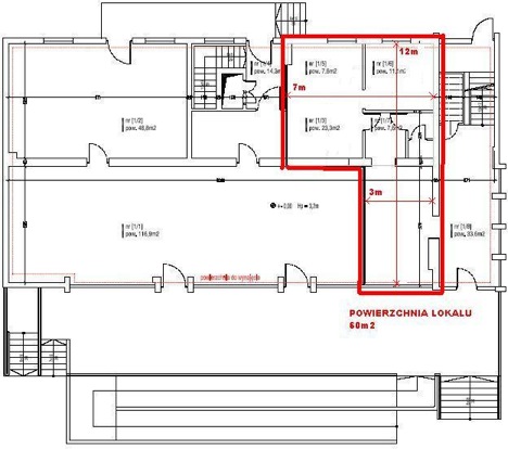
60 m²
Powierzchnia
parter /2
Piętro

Opis

Do wynajęcia funkcjonalny lokal o powierzchni 60 m2 w budynku handlowo- usługowym w Bytomiu, dzielnicy Rozbark. Miejsce mieści się na wysokim parterze. Pawilon jest jedynym obiektem handlowo-usługowym na tym osiedlu. Nietypowe ścianki widoczne na zdjęciu są pozostałością po poprzedniej działalności i można je zdemontować. Wejście do lokalu jest przez korytarz, który jest częścią wspólną z działalnością mieszczącą się na pierwszym piętrze budynku.



Atuty lokalu:

- funkcjonalny układ pomieszczeń

- nowe okna

- witryna

- ogrzewanie miejskie CO 5 zł za m2

- płytki ceramiczne

- dogodna lokalizacja

- darmowy parking

- stabilne warunki najmu



Lokalizacja:

- centrum Bytomia

- 500 m od Rynku, 750 m od dworca



Przeznaczenie lokalu:

- fryzjer/ barber/ fryzjer dla zwierząt

- kosmetyczka

- gabinet masażu

- studio urody

- kawiarnia

- gabinet weterynaryjny

- biuro podróży, biuro rachunkowe, kancelaria itp.

- inne usługi



CENA WYNAJMU: 2900 zł + VAT + opłaty wg zużycia


LOKAL DOSTĘPNY OD ZARAZ.

Agent prowadzący ofertę- Fatima Vitaku tel. 533-363-920. Pośrednik odpowiedzialny za wykonanie umowy - licencja nr 19670.

POSIADAMY PONAD 18–LETNIE DOŚWIADCZENIE W OBROCIE NIERUCHOMOŚCIAMI.

Polecam i zapraszam na prezentację lokalu.

Szczegóły

Nr oferty 2026020619944
Typ transakcji Do wynajęcia
Cena 2 900 PLN
Miasto Bytom
Dzielnica Rozbark
Powiat Bytom
Gmina Bytom
Powierzchnia 60 m²
Piętro parter/2
Pięter w budynku 2
Materiał pustak
Dojazd asfalt
Przeznaczenie handel i usługi
Umiejscowienie pawilon
Wejście od ulicy
Kanalizacja miejska
Region śląskie

Wyposażenie i cechy

Garaż / parking
na ulicy parking niestrzeżony
Media
siła woda telefon ogrzewanie prąd
Inne
witryna zaplecze socjalne internet
Instalacje
wentylacja
2 900 PLN

Kontakt

F
Fatima Vitaku
+48 533 363 920
fatima@rezydentdom.pl
Wycena nieruchomości

Bezpłatna wycena nieruchomości

Otrzymaj profesjonalną wycenę Twojej nieruchomości. Wypełnij formularz, a nasz ekspert skontaktuje się z Tobą w ciągu 48 godzin.